Menu
About
Our Practice
Jacqueline Green
Thomas Teggin
Services
Services & Fees
Design & Construction
Conservation & Sustainability
Work
Key Projects
Archive Projects
Other Work
Review
Clients
Press
Contact
⇠
/
⇢
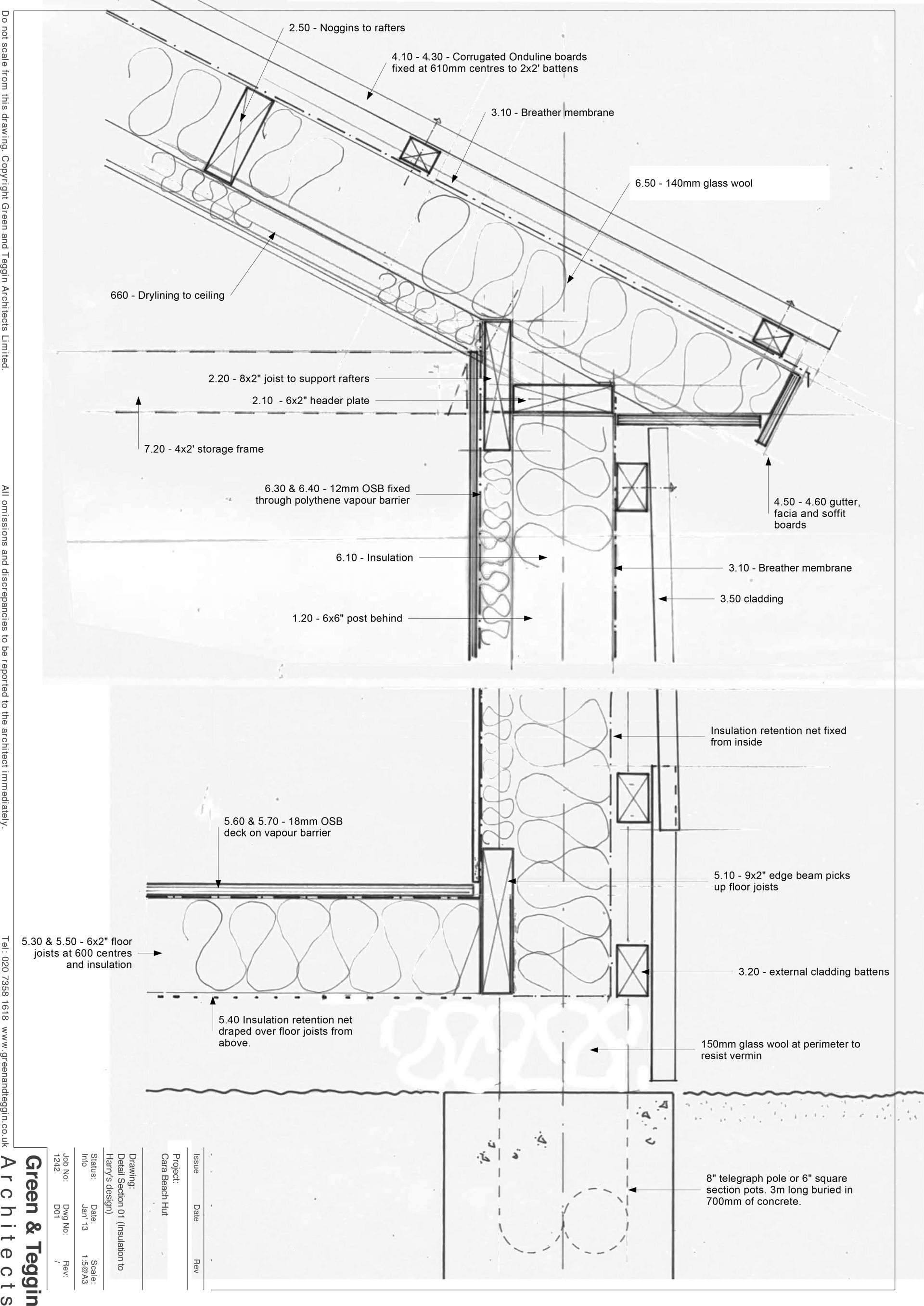
Beach Hut
Store and shelter in the Inner Hebrides